开门就见厅,入室没有玄关,室内隐私得不到很好的保护,而且较不方便的是鞋子、包包、雨伞等一系列的东西都是没有办法收纳的。这样很容易降低门户颜值,客人来家里印象也不好。

你家也是没有玄关的户型?
在这里给大家解析几种常见没有入户玄关的户型,看看别人家是怎么解决这个比较尴尬的问题吧!
住宅风水大师浅谈户型1:入户门与餐厅在同一水平线

问题:大门与餐厅墙成90度挤压空间,难以设计玄关。
解决:如图我们可以借用大门另外一侧空间布置玄关柜子。较常见的方式就是设计靠墙柜;或者在墙面安装挂钩,下面摆放一个可以放鞋子的换鞋凳;摆放一个靠墙边柜。
既想保存入室的收纳功能,还想保证空间的私密性,可以采用以下的方式:

在玄关和餐厅空间直接用半开放式的玄关隔断,上隔断下柜体的造型可以兼并收纳和遮挡的功能,也很好的释放了入室墙边的空间,不会进门就觉得拥挤。
户型2:入户门和客厅在同一水平线

问题:大门与客厅墙呈90度垂直关系,难以设计玄关。
风水学知识解决之道:如图我们可以直接设计一个空间隔断与客厅墙面垂直,与大门平行。这种设计一次性解决了入室收纳和入室没有遮挡的问题;开门即可换鞋也不会一眼看穿整个室内布局。
且大客厅采用这种设计,可以让空间造型更显层次感;玄关隔断整个厚度保持30公分左右就能很好的满足入室收纳问题。即使在不宽裕的两面墙体之间,1㎡小空间也可以用上下柜结构设计独立的收纳空间。
户型3:入户门直对大空间
问题:大门正对餐客厅,与墙体呈90度垂直,难以设计玄关
风雅颂易经算命网大师浅谈解决方案:大门居中,左右两边的墙面都可以利用起来。因为靠近餐厅,建议可以采用空间功能叠加的方式,实现餐厅、玄关收纳一体,也可以解放另一边墙体空间,降低入室的拥挤感。
如图在转角墙面设计整面墙柜与餐厅连接,或者打造上下吊柜,上柜餐厅收纳,下柜玄关收纳,中间镂空可以随手放置东西,也让墙面造型有空余空间,整体更有呼吸感。
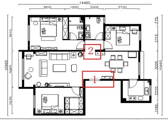
户型4:入室门正对卧室/卫生间/过道

问题:入户门与餐客厅墙体平行,正对私密空间,难以设计玄关。
解决:可以在图2位置空间设计一个小隔断,可以化解大门正对卫生间/卧室的不良风水作用;若要保证玄关的实用性,可以将收纳柜设计在大门靠墙或者隔断边上都可以。
户型5:入户过道过长

问题:进门长过道,且宽度不足,难以设计玄关。
解决:测量两边预留过道宽度,看看把玄关柜子打薄一些放进去;其次就是做内嵌玄关柜子,直接把玄关柜放入墙体里面,需要考虑墙体是否能凿的问题。转运方法
如果不能实现,就只能在距离大门一段距离的空间摆放玄关柜子收纳了。
好命不代表有好运,是金子也不一定能发光,想要将命运掌握在自己手中,唯有洞察先机,了解自己的命与运,详情请咨询:风雅颂易经算命网 www.suansuangua.com可助您一臂之力。






虎年运势
几段婚姻
一生姻缘
合婚配对
正缘画像
生辰详批
一生详批
姓名详批
微信公众号