朋友在美东租了两年的房子马上到期了,不准备续租要换个新的环境。周易风水算命说到这里要吐槽一下美东的房东租房理念,周易风水算命在美东租房是这样的,第一次租房价格会相对便宜,但如果续租每年都会涨。比如你第一次签合同,起租价格是每月2000叨,第二年续租就是2300叨,第三年就涨到2800叨。

如果你不续租,房东挂出去的租金又会回到2000叨。抓的就是租客图安逸的心里。所以很少有人会续租同一个房子三年以上,较多三年就会换地方,因为这租金涨幅受不起啊。房东可不管那么多,掐准了美东流动人口多不愁没人租的大环境,就是这么任性。#在线算命一条街这次朋友看中了两处不同区域的房子,一个大致靠近皇后区,一个在布鲁克林区。周易算命运势根据一个城市以市政中心为中心点,将城市划分为东西南北四个方位,一个在东北方向的寅位,一个在东南方向的辰位。
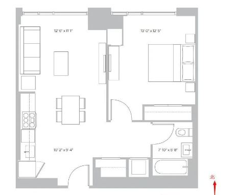
从朋友是火命人,目前求学为主的角度来说,寅生,辰泄。两个方向大体都可以去,那就要比较那个更有利于自己谋求的发展。火属性并不喜欢生旺受约束,所以建议去辰位的更好一些。辰为官杀库,火命人不喜官杀,官杀入库代表力量受约束则不伤人,所以选辰位为宜。易经运势查询第一套的优点是卧室在西北方乾位,东厨西厕,开门巽位,布局合理。西北方位是主人位,主做事果敢决断谋划长远。虽然东北角有缺,让人少了一份安逸,但好在缺度不大,不会造成实质影响。主要是心态上会对事务发展的在意性更强。
第二套的优点是房型周正无缺,但卧室在东北方艮位,厨卫设置反向,开门未位,布局不够合理。东北方位为养生位,容易让人缺乏斗志,图安逸。既然朋友去美东是为将来活的更好而奋斗,那自然是首选第一套。这才是选房的目的和意义。
本文由风雅颂易学网在线算命一条街整理提供,转载请注明来源(周易算命)https://www.suansuangua.com